Appartamento Largo Ettore Marchiafava, Piazzale delle Province
PIAZZALE DELLE PROVINCE – e più precisamente in Largo Ettore…
489,000€
Piazza Vincenzo Ceresi, Monteverde, Municipio Roma XII, Roma, Lazio, 00152, Italia
In Vendita
400,000€
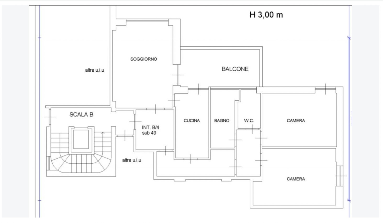
MONTEVERDE – Più precisamente in Piazza Vincenzo Ceresi, proponiamo in vendita in palazzo in cortina con ascensore, luminoso terzo piano. La proprietà è disposta su un unico livello di totali 95 mq composta da ampio ingresso, soggiorno, cucina, due camere da letto, doppi servizi e ripostiglio. Completa la proprietà un terrazzo con accesso diretto dal soggiorno e dalla cucina e un piccolo balcone in una delle due camere da letto e una comoda cantina. Pavimenti in parquet, aria condizionata, riscaldamento centralizzato.
La zona risulta essere collegata con tutti i principali mezzi pubblici e varie attività commerciali. L’immobile si trova a pochi passi da Villa Pamphili.
PIAZZALE DELLE PROVINCE – e più precisamente in Largo Ettore…
489,000€
VIA TUSCOLANA SUBAUGUSTA – proponiamo in vendita in palazzina con…
309,000€
Possedere una casa è una chiave di volta della ricchezza... sia la ricchezza finanziaria che la sicurezza emotiva.
Suze Orman